建築施工図作成・チェック、製作図チェック、CADオペレーターほか

事業案内

建築施工図作成

豊富な経験と専門知識などを基に、建物の用途に応じたコンセプトやデザイン、構造や材料、設備・工法・コストなどの多岐に渡る項目を総合的な視野で考慮して、工事の遂行に必要となる詳細な寸法を示した施工図(躯体図、平面詳細図、配筋図、仮設計画図など)を作成いたします。

施工図チェック

各種寸法の確認・整合、部材の取り付けやすさや次工程との取り合いに配慮してチェックいたします。

製作図チェック

工場で製作する為に必要な製作図は、サッシや外装パネル、金物や家具など多岐にわたりますが、トラブルを未然に防ぐ為に徹底してチェックいたします。

CADオペレーター派遣

施工図作成に欠かせないCAD操作はもちろん、図面などでカタチを表現するためのルールを習熟した人材を派遣いたします。

事務員などの派遣

長期はもちろん、繁忙期などの期間限定にも対応して、一般事務経験があるスタッフを派遣させていただきます。

施工図サンプル

施工図のサンプルです。各図面の画像をクリックすると拡大表示(JPG)できます。

タイル割付図

タイル割付図 ※PDF版はこちら

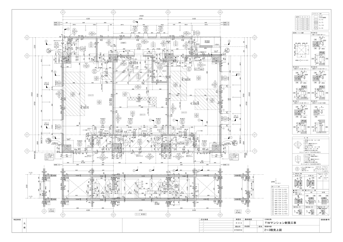
平面詳細図

平面詳細図 ※PDF版はこちら

躯体図(立面図)

躯体図 ※PDF版はこちら

配筋図

配筋図 ※PDF版はこちら

外部足場計画図(平面図)

外部足場計画図(平面図) ※PDF版はこちら

外部足場計画図(立面図)

外部足場計画図(立面図)※PDF版はこちら